上里町大御堂第4  2号棟

4月17日 値下げ

1,980万円

埼玉県児玉郡上里町大字大御堂263-3

八高線「丹荘」駅徒歩35分

高崎線「神保原」駅徒歩52分

八高線「児玉」駅徒歩60分

価格
1,980万円
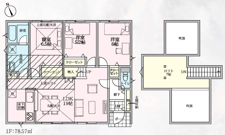
間取り
3LDK
土地面積
307.93㎡
所在地
埼玉県児玉郡上里町大字大御堂263-3
交通

八高線丹荘」駅 徒歩35分

高崎線神保原」駅 徒歩52分

八高線児玉」駅 徒歩60分

建物面積
78.57㎡
築年月
2026年2月(新築)

物件の特徴

  • TVモニタ付きインターホン

  • カウンターキッチン

  • 浴室乾燥機

セールスポイント

新生活を失敗せず、スタートさせたいならこちらの「上里町大御堂第4 」はいかがでしょうか。浴室乾燥機のあるお風呂場は洗濯物を干すときにも便利です。自動車用のスペースもたっぷりあり、3台の駐車ができます。不動産をお探しの方はいませんか。当社ではあなたの頼れる不動産探しのパートナーになれるよう、不動産情報を豊富に取り扱っております。ぜひご検討ください。

ポイント

南側道路面す 整形地 浄水器 浴室に窓 温水洗浄便座

担当者のコメント

小林 優作

「上里町大御堂第4 」:児玉郡上里町エリアの新居にピッタリ。上里町立長幡小学校が通学範囲内、学校まで徒歩22分。価格が2380万円の物件です。システムキッチン付きの物件でカラーリングも統一できるため見た目に一体感が生まれ、美しいです。児玉郡上里町の八高線丹荘近くで住まい探しをするのであれば、当社スタッフにお任せください。多種多様な不動産情報の中から、お客様に合ったものをご紹介致します。

基本情報

販売戸数
-
総戸数
2戸
間取り / 詳細
3LDK
LDK 19.0帖 1室/洋室 5.2帖 1室/洋室 6.0帖 1室/洋室 6.5帖 1室
向き
建物面積(坪数)
78.57㎡(23.76坪)
土地面積(坪数)
307.93㎡(93.14坪)
建ぺい率 /
容積率
60%/164%
築年月
2026年2月(新築)
駐車場 / 月額
有 / 0円
土地権利
所有権
土地
(敷金 / 保証金)
- / -
建物構造
木造 / 1階建
傾斜地部分面積
-
路地状敷地
-
私道負担面積
-
セットバック
高圧線下面積
-
施工会社
-
用途地域
無指定
地目 / 地勢
宅地 / -
接道状況
-(南 公道 4.1m)
国土法届出要否
不要
都市計画
非線引区域
総区画数 /
販売区画数
2区画/-
現況
完成済み
その他
法令上の制限
-
取引態様
一般媒介
引渡し
即時
取引条件の
有効期限
2026年05月04日

設備条件

設備条件
  • 陽当り良好 / バリアフリー / 建設住宅性能評価書付 / カードキー / プロパンガス / 公営水道 / 浄化槽排水 / 24時間換気システム / 電気有 / 駐車3台可 / ガスコンロ / コンロ2口以上 / システムキッチン / カウンターキッチン / コンロ3口 / 浴室乾燥機 / 温水洗浄便座 / トイレ2ヶ所 / 浴室1坪以上 / 床下収納 / TVモニタ付インターホン / 複層ガラス / ディンプルキー
設備(その他)
    東京電力・プロパンガス・浄化槽・公営水道

その他

物件番号
98061462
管理コード
-
建築確認番号
第25UDI1W建07066号
情報更新日
2026年04月20日
次回更新予定日
2026年05月04日
取扱会社
  • 株式会社アクティブホーム
  • 埼玉県熊谷市佐谷田3986番地6 
  • TEL:0120-70-3794
  • 埼玉県知事 (3) 第23155号
  • 公益財団法人埼玉県宅地建物取引業協会
    公益社団法人全国宅地建物取引業保証協会
    公益社団法人首都圏不動産公正取引協議会
備考
「上里町大御堂第4 」:児玉郡上里町エリアの新居にピッタリ。上里町立上里中学校が徒歩33分で通学にも便利です。新生活を迎える際は、3LDKの物件はいかがでしょうか。当社では、児玉郡上里町エリアや八高線丹荘付近での一戸建て情報をご紹介致します。まずはお気軽にお問い合わせ下さい。

周辺施設

  • ローソン 上里三町店の画像

    コンビニエンスストア

    ローソン 上里三町店

    817m(11分)

  • 上里三町郵便局の画像

    郵便局

    上里三町郵便局

    1256m(16分)

  • ひまわりこども園の画像

    保育園

    ひまわりこども園

    1437m(18分)

  • 上里町立長幡小学校の画像

    小学校

    上里町立長幡小学校

    1691m(22分)

支払いシミュレーション

月々の支払額

※実際の金額と異なる場合があります。

購入希望物件価格
万円
頭金
万円
金利
%
返済額(ボーナス1回分)
万円
返済期間

※ボーナスは自動で年2回分で計算されます。

近隣の物件

  1. リーブルガーデン.S 上里町七本木第6 

    児玉郡上里町大字七本木

    4LDK (105.99㎡)

    2,490万円

  2. 上里町黛第1 

    児玉郡上里町大字黛

    4LDK (99.62㎡)

    1,980万円

よく見られている物件

  1. リーブルガーデン.S 熊谷万平町第3 

    熊谷市万平町2丁目

    4LDK (110.96㎡)

    3,890万円

  2. 行田市桜町1丁目 

    行田市桜町1丁目

    4LDK (103.70㎡)

    2,990万円

  3. 行田市向町第2 

    行田市向町

    4LDK+S(納戸) (95.58㎡)

    2,480万円

  4. リーブルガーデン.S 寄居露梨子 

    大里郡寄居町大字露梨子

    4LDK+S(納戸) (114.27㎡)

    1,990万円

上里町大御堂第4 

上里町大御堂第4 

1,980万円

-

3LDK(78.57㎡)

お気軽にお問い合わせください

LINEからお問い合わせ 無料お問い合わせ

株式会社アクティブホーム

0120-70-3794

09:00~18:00

(休:水曜日)