00件
最近見た物件
00件
検討リスト
熊谷市の一戸建て|株式会社アクティブホーム > (戸建(売買))地域から探す > 児玉郡上里町 > 上里町大御堂第4 > 2号棟
新生活を失敗せず、スタートさせたいならこちらの「上里町大御堂第4 」はいかがでしょうか。浴室乾燥機のあるお風呂場は洗濯物を干すときにも便利です。自動車用のスペースもたっぷりあり、3台の駐車ができます。不動産をお探しの方はいませんか。当社ではあなたの頼れる不動産探しのパートナーになれるよう、不動産情報を豊富に取り扱っております。ぜひご検討ください。











(※元利均等方式 金利5.00%まで ※返済年数5~50年まで入力できます)
(※ボーナスは年2回で計算しています。1000万円まで入力できます)
(※物件購入時、その他諸費用が発生する場合がございます)
| 所在地 | 埼玉県児玉郡上里町大字大御堂263-3 | ||
|---|---|---|---|
| 交通 | |||
| 間取り/詳細 |
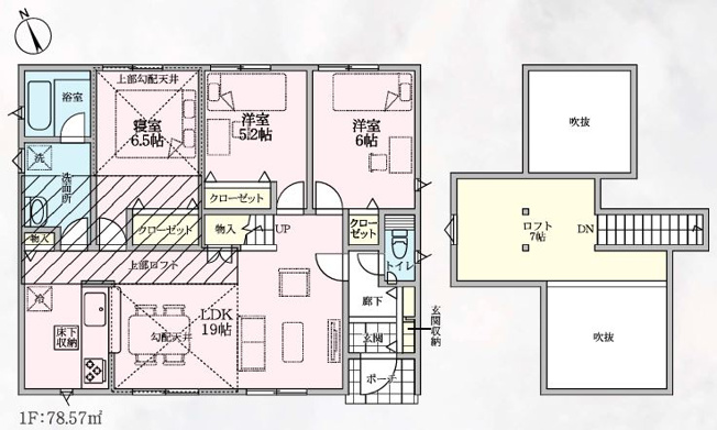
3LDK/ LDK 19.0帖 1室/洋室 5.2帖 1室/洋室 6.0帖 1室/洋室 6.5帖 1室 |
建物面積(坪数) | 78.57㎡(23.76坪) |
| 価格 | 2,180万円 | ||
| 駐車場/月額料金 | 有/0円 | ||
| 土地の敷金/保証金 | -/- | 借地料/借地期間 | -/- |
| 土地権利 | 所有権 | 土地面積(坪数) | 307.93㎡(93.14坪) |
| 傾斜地部分面積 | - | 路地状敷地 | - |
| 私道負担面積/セットバック | -/無 | 高圧線下面積 | - |
| 地目/地勢 | 宅地/- | 接道状況 | -(南 公道 4.1m) |
| 建ぺい率/容積率 | 60%/164% | 用途地域 | 無指定 |
| 都市計画 | 非線引区域 | 種別/構造 | 新築一戸建/木造 |
| 階建 | 1階建 | 築年月(築年数) | 2026年 3月 (予定) |
| 総区画数/販売区画数 | 2区画/- | 向き | 南 |
| 現況 | 未完成 | その他の法令上の制限 | - |
| 取引態様/引渡時期 | 一般媒介/相談 | 建築確認番号 | 第25UDI1W建07066号 |
| 物件番号 | 98061462 | 取引条件の有効期限 | 2026年03月17日 |
| 設備条件 |
|
||
| 備考 | 「上里町大御堂第4 」:児玉郡上里町エリアの新居にピッタリ。上里町立上里中学校が徒歩33分で通学にも便利です。新生活を迎える際は、3LDKの物件はいかがでしょうか。当社では、児玉郡上里町エリアや八高線丹荘付近での一戸建て情報をご紹介致します。まずはお気軽にお問い合わせ下さい。 | ||
| 設備(その他) | 東京電力・プロパンガス・浄化槽・公営水道 | ||
| 取扱会社 |
|
||
| QRコード |
このQRコードを読み取ることで、スマホでも物件情報を確認できます。 |
||
※地図上に表示される物件の位置は付近住所に所在することを表すものであり、実際の物件所在地とは異なる場合がございます。
上里町大御堂第4 に関するこだわり条件から探す
児玉郡上里町にある駅から探す
上里町大御堂第4 周辺の駅から探す